Property Details - Reference 495555

Sherd Grove, Halsnead Garden Village, Whiston, L35 3BR
Cost summary

Overview

Advert Type:
CBL Property.
Landlord:
Cobalt Housing.
Closing date:
01/02/2026.
Added:
27/01/2026.
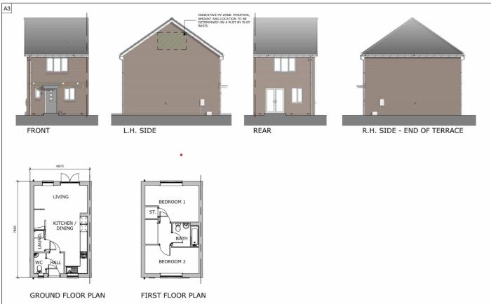
2 Bed
Garden - Rear garden only
Preference given to local residents of Knowsley
Pets allowed
Icon Descriptions
2 Bed
Garden - Rear garden only
Preference given to local residents of Knowsley
Pets allowed
Front view

Property Details

Address:
Sherd Grove, Halsnead Garden Village, Whiston, L35 3BR.
Property Type:
House.
Bedrooms:
2.
Property sub-type :
Semi detached.
Below is a map showing this property's location. Skip past the map
This property cannot be displayed on a map

Facilities

Garden type :
Rear garden only.
Heating type :
Gas central heating.
Bathroom facilities :
Bathroom with W/C and downstairs W/C.
Parking facilities :
Off street parking.
Double glazing :
Yes.

Eligibility requirements

Minimum bed need :
2.
Maximum bed need :
2.
Allowed household types :
Any household .
Only for band(s) :
All Bands.
Property age :
New build first let.

Preference details

Preference will be given to residents of :
Knowsley Metropolitan Borough Council.

Costs

Rent :
£123.14.
Frequency :
Weekly (52 weeks).
Total cost :
£123.14.

Other Details

Marketing information:
The Meadows is new development located in Whiston close to green spaces including Stadt Moers Park and Whiston Woods. There are good local transport links with easy access to M57/M62, Whiston Train station and local bus services to surrounding areas including Rainhill Village and Liverpool. There is also a range of well-rated primary and secondary schools nearby. Large supermarkets are a short drive away and a convenience store is located just across the road. .
Contact details :
Cobalt - 0330 303 2222.

Media

Local area

No local area details could be found for this location.

Map

Below is a map showing this property's location. You can find more information about this property in the 'Overview' tab. Skip past the map
This property cannot be displayed on a map

Map references should be used as a guide only and do not indicate the precise location of the property
Contains Ordnance Survey data © Crown copyright and database right 2015.